Property Detail

Clementine St

Oceanside CA 92054

$600,000

Status: Active

Property Details

Description

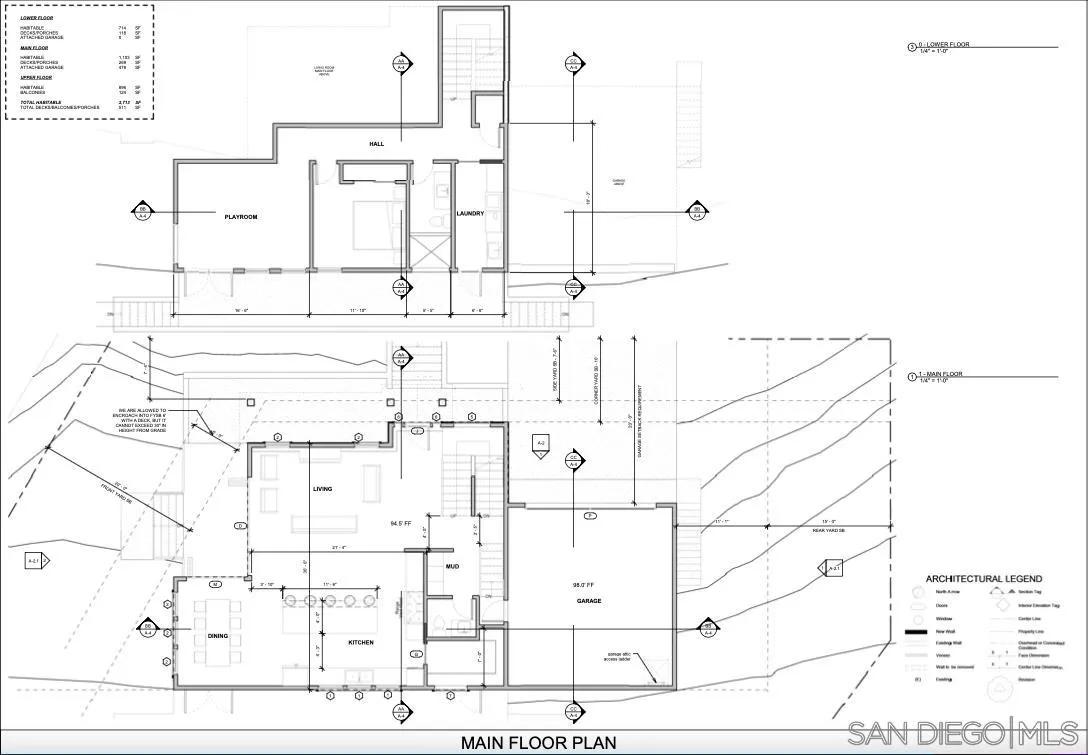
Build your custom dream home on this rare OCEAN VIEW hilltop lot in the rapidly appreciating "South O" coastal community. Nestled at the end of a private drive with no rear neighbors behind, maximizing both ocean and easterly views, this 0.5-mile-to-beach location offers unmatched coastal value. Save months of holding costs: owner's plans are already city-reviewed, near permit-ready, and NOT subject to Coastal Commission. Massive equity potential with nearby new builds selling for $2.5M (east of Hwy 5), this is the ultimate coastal investment. Walk or bike to South Oceanside’s best coffee shops, Michelin-rated dining, and breweries. Coastal living at its best value!

Map Location

Listing provided courtesy of Nicki Mendoza of Keller Williams San Diego Metro. Last updated . Listing information © 2025 SANDICOR.

Get In Touch

Mark Marquez

Mark Marquez

CA DRE# 01232386

Real estate Realtors https://www.zillow.com/profile/MarkMarquezCIPS