Property Detail

3395 Franklin Avenue

Riverside CA 92507

$525,000

Status: Active

Property Details

Description

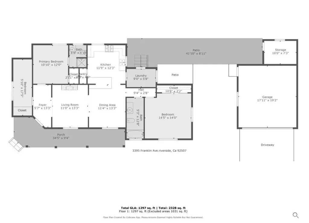
Welcome to a historic and large corner turnkey home, centrally located minutes from Downtown Riverside, the University of California Riverside (UCR), Riverside Community College (RCC), and the Iconic Mission Inn. This vintage one-story 3 bedroom and 2 bath gated home has a large corner lot with excellent curb appeal. Many renovations bring the best of this house's past and present. It includes new paint interior & exterior, an entirely remodeled kitchen with a walk-in pantry, and recessed lighting. The entire home has been completely renovated with tile, updated windows, and a central A/C. The exterior area presents a new patio backyard, reconstructed porch, a newly installed asphalt driveway, and foundation. The home's roof has been replaced to last for many years to come. The detached garage and storage shed holds great rental earnings potential as an investment opportunity. It can be converted to a secondary residential Accessory Dwelling Unit (ADU) ie. studio. This traditional home's key features with its large lot and easy access to major freeways, the Metrolink, schools, shops, dining, and more creates a perfect space for multigenerational living.

Map Location

Listing provided courtesy of Simon Mills of Mills Realty of California. Last updated . Listing information © 2025 SANDICOR.

Get In Touch

Mark Marquez

Mark Marquez

CA DRE# 01232386

Real estate Realtors https://www.zillow.com/profile/MarkMarquezCIPS