Property Detail

921 Azalea Avenue

Placentia CA 92870

$1,035,000

Status: Active

Property Details

Description

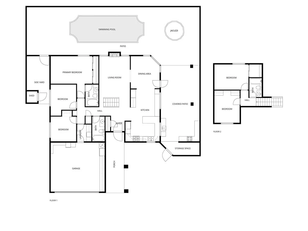
This 5 bedroom, 3 bathroom pool home offering nearly 2,000 square feet of comfortable living space and RV parking is perfect for families and entertainers alike. Step inside to find a convenient main floor primary bedroom suite along with two additional bedrooms and shared bathroom, a spacious family room and a large family sized dining area, plenty of room in the kitchen including ample cabinet space with a wine refrigerator, perfect for hosting those Sunday dinners. Upstairs you will find the 4th and 5th spacious bedrooms and your 3rd bathroom. The open layout seamlessly connects indoor and outdoor living, leading to a backyard built for entertaining. Enjoy your private backyard oasis featuring a sparkling pool, spa, and a fully-equipped outdoor kitchen with a built-in BBQ, oven/stove, warming drawer, commercial sink, two ice makers, refrigerator, and an outdoor TVall under a covered patio perfect for year-round gatherings. Fruit trees add charm and a touch of nature to the backyard, including an orange tree, lime tree, and a banana tree, and some strawberries in the garden area as well. Additional highlights include a newer roof (about 4-5 years old), leased solar panels through SunRun for energy efficiency and a great neighborhood with top rated schools. Don't wait to come make this home your own.

Map Location

Listing provided courtesy of Lori Fenn of Keller Williams Realty. Last updated . Listing information © 2025 SANDICOR.

Get In Touch

Mark Marquez

Mark Marquez

CA DRE# 01232386

Real estate Realtors https://www.zillow.com/profile/MarkMarquezCIPS