Property Detail

31456 Magnolia

Murrieta CA 92563

$630,000

Status: Active

Property Details

Description

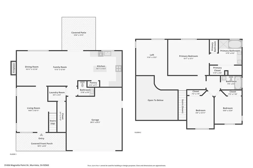
Turn Key 3 bed, 2.5 bath home is ready to be made yours and is located in the Rancho Bella Vista community! Offering great curb appeal, an attached 2-car garage, a covered porch area to enjoy, and leased Solar Panels. Also, the interior is spacious with almost 2,000 sqft of living space, high ceilings, recessed lights, carpet, and tile flooring. Enter into the formal living room and dining room which flows into the family room with fireplace and sits just off of the kitchen with granite countertops, on-trend dual-color white and blue cabinetry, with center island, and a pantry. All 3 bedrooms are located on the 2nd floor including a bonus loft area. The large primary suite features a private ensuite with dual sinks, a soaking tub, and a separate shower. There is also a full-size hall bathroom for the 2 secondary bedrooms, and a half bathroom for guests. Enjoy the fully fenced backyard with grass and concrete areas, a gazebo to relax under, and plenty of space to make your own! Conveniently located near schools, trails, shopping, dining, and not far from the 215 and 15 Fwys! Schedule your tour today!

Map Location

Listing provided courtesy of Ana Dittamo of Redfin Corporation. Last updated . Listing information © 2025 SANDICOR.

Get In Touch

Mark Marquez

Mark Marquez

CA DRE# 01232386

Real estate Realtors https://www.zillow.com/profile/MarkMarquezCIPS