Property Detail

16154 Lozano Street

Fontana CA 92336

$615,000

Status: Active

Property Details

Description

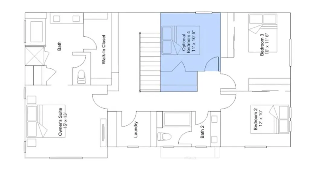
Built in 2024 by Lennar Homes, this two-story detached condominium in the Monterado community offers 3 bedrooms, 2.5 bathrooms, and approximately 1,926 sq ft of living space. The first level features an open floor plan connecting the Great Room, kitchen, and dining area with quartz countertops. Upstairs includes a loft and all three bedrooms, including the primary suite with a walk-in closet and a bathroom with dual sinks, a separate shower, and a tub. Washer, dryer, and dishwasher are included. Additional features include solar and a two-car attached garage. Monterado is a gated community offering amenities including a pool, spa, clubhouse, playgrounds, dog park, picnic areas, walking trails, and recreation facilities. Conveniently located near the 15, 210, and 10 freeways and close to Sierra Lakes Golf Club, Falcon Ridge Town Center, Victoria Gardens, San Manuel Amphitheater, shopping, dining, schools, and local recreation.

Map Location

Listing provided courtesy of Amanda Zito of The Real Brokerage, Inc.. Last updated . Listing information © 2025 SANDICOR.

Get In Touch

Mark Marquez

Mark Marquez

CA DRE# 01232386

Real estate Realtors https://www.zillow.com/profile/MarkMarquezCIPS