Property Detail

6062 Kibler

Paradise CA 95969

$505,000

Status: Active

Property Details

Description

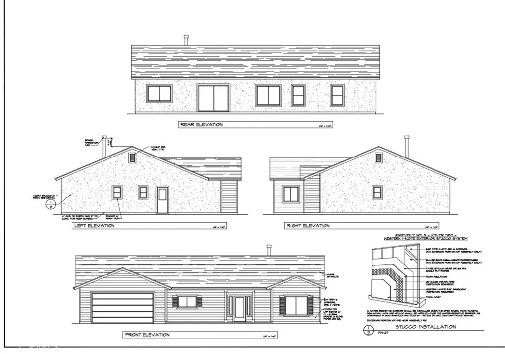
Introducing a rare opportunity to secure a brand-new home before construction is complete. This thoughtfully designed 3 bedroom, 2 bathroom residence offers approximately 1,807 square feet of living space, plus a 482 square foot garage and covered patios for seamless indoor-outdoor living. The open concept layout centers around a spacious great room with fireplace, flowing naturally into the dining area and kitchen for comfortable everyday living and easy entertaining. The primary suite is generously sized and features a walk-in closet and private bath, while the additional bedrooms provide flexibility for guests, office space, or hobbies. Early buyers have the ability to personalize select finishes including exterior color, interior paint palette, backsplash options, and window frame color (black or white), allowing you to create a home that reflects your style from the start. Home must be placed under contract prior to completion to participate in finish selections. Final specifications, materials, and colors are subject to change per builder plans and availability.

Map Location

Listing provided courtesy of Jenna Johnson of Jenna Johnson, Broker. Last updated . Listing information © 2025 SANDICOR.

Get In Touch

Mark Marquez

Mark Marquez

CA DRE# 01232386

Real estate Realtors https://www.zillow.com/profile/MarkMarquezCIPS